4628 Joplin Court
Price$ 232,900
Bedrooms3
Full Baths2
Half Baths1
Sq Ft1674.00
Lot Size0.06
MLS#333822
AreaSpartanburg
SubdivisionBerkeley
CountySpartanburg
Approx Age1-5
Listing AgentTasha Ellison - Ellison Real Estate Co. LLC
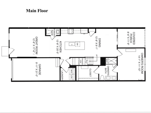
DescriptionWelcome home to this beautifully appointed, light-filled townhome offering effortless, maintenance-free living with a highly desirable main-level primary suite. Ideally positioned just minutes from downtown Spartanburg, popular shopping and dining — including Publix, Lowe’s, Walmart, and Starbucks — and convenient access to I-26, this location perfectly balances accessibility and privacy. Tucked away from the main road, the property enjoys a peaceful setting with a private backyard retreat all while being located close to the additional parking area and amazing Junior Olympic sized pool. Inside, you’ll find a move-in-ready interior enhanced with thoughtful upgrades, including installed blinds and luxury vinyl plank flooring flowing seamlessly through the living, kitchen, and dining areas. The spacious living room opens beautifully to the kitchen, creating an inviting layout ideal for everyday living and entertaining. The kitchen features a large granite island with single-bowl sink and bar seating, pantry, and stainless steel appliances, including a smooth-top range. A convenient powder room and walk-in laundry complete the main living area. Privately situated at the rear of the home you have access to the private covered back porch and back inside is the main-level primary suite offers a relaxing retreat with dual vanities, walk-in shower, and an expansive walk-in closet. Upstairs, you’ll find two generously sized bedrooms with ample closet space that share a well-appointed full bath. Storage is abundant throughout the home, including a walk-out attic, multiple interior closets, and a one-car garage. The HOA provides exceptional value, covering lawn maintenance, exterior upkeep and insurance, common areas, street lighting, trash service, pest control, and irrigation. Residents also enjoy outstanding community amenities, including a zero-entry Junior Olympic pool, expansive cabana, and playground. Whether you’re seeking a low-maintenance primary residence or a strong addition to your investment portfolio, this townhome is an opportunity you won’t want to miss. Lights in the bedrooms have all been prewired for fans.
Features
Status : Active
Style : Traditional, Craftsman
Basement : Slab
Roof : Composition
Exterior :
Exterior Features :
Interior Features :
Master Bedroom Features :
Specialty Room :
Appliances : Dishwasher, Disposal, Refrigerator, Free-Standing Range, Microwave, Electric Range, Range - Smooth Top
Lot Description : Level, Underground Utilities
Heating :
Cooling : Central Air
Floors :
Water : Public
Sewer : Public Sewer
Water Heater :
Foundation :
Storage :
Garage :
Driveway :
Elementary School : 7-Drayton Mills Elementary
Middle School : 7-McCracken
High School : 7-Spartanburg
Listing 333822 courtesy of Tasha Ellison - Ellison Real Estate Co. LLC 864-706-6974
Listings courtesy of Spartanburg Association of Realtors as distributed by MLS GRID.
© 2026 Spartanburg Association of Realtors ® All Rights Reserved.
The data relating to real estate for sale on this web site comes in part from the Internet Data Exchange (IDX) program of the Spartanburg Association of REALTORS®. IDX information provided exclusively for consumers' personal, non-commercial use and may not be used for any purpose other than to identify prospective properties consumers may be interested in purchasing. Information is deemed reliable, but not guaranteed.
© 2026 Spartanburg Association of Realtors ® All Rights Reserved.
The data relating to real estate for sale on this web site comes in part from the Internet Data Exchange (IDX) program of the Spartanburg Association of REALTORS®. IDX information provided exclusively for consumers' personal, non-commercial use and may not be used for any purpose other than to identify prospective properties consumers may be interested in purchasing. Information is deemed reliable, but not guaranteed.





